Bournemouth
Project Brief: Subdivide garden and form new three-bedroom detached house.
East Coker
Project Brief: Two storey extension to front of existing house
Gillingham
Project Brief: Side extension and alteration to bungalow
Salisbury
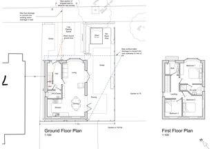
Project Brief: Replace existing uPVC conservatory with a single storey extension to form a new kitchen/dining space
Somerton
Project Brief: Change of use from light industrial unit to modern spacious four-bedroom house.
Stalbridge
Project Brief: Two storey side extension to form a one-bedroom self-contained annex
Vennington
Project Brief: Porch extension to the front of the property to form a new entrance and wet room
Want to speak with us sooner? Contact us on WhatsApp for Business: 0333 009 6265








































